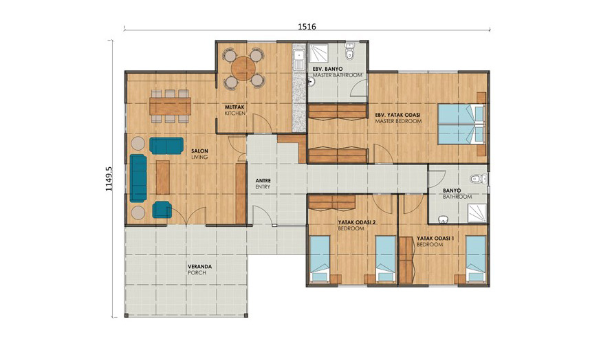
Aral Yapı Prefabrik | Yasemin 150 M2 (3+1)
Aral yapı Prefabrik ev fiyatları, Malatya prefabrik ev fiyatları, Tunceli prefabrik ev fiyatları, prefabrik ev fiyatları,
1502
page-template-default,page,page-id-1502,page-child,parent-pageid-287,ajax_fade,page_not_loaded,,qode_grid_1300,qode-theme-ver-10.1.1,wpb-js-composer js-comp-ver-5.0.1,vc_responsive
 

Yasemin 150 M2 (3+1)

Aral Yapı Prefabrik ile artık ev sahibi olmak daha kolay. Uzun yılların birikimi ile kazandığı tecrübe ve yüksek kaliteli malzeme standartları ile konforlu, dayanıklı ve uzun ömürlü lüks Prefabrik yapılar üreten Aral Yapı Prefabrik, teslimat sonrası verdiği güvence ve hizmet nedeniyle sektörde bölgenin lider kuruluşu olmayı başarmıştır.

Yasemin 150 M2 (3+1) modelimize ait detayları aşağıda bulabilirsiniz.